Immobilier Ouest Var
Ouest Var > Immobilier > Bandol > Terrain > SFN-1925554

450 000 € Terrain Bandol

Référence: SFN-1925554
iad France - Isabelle Dealessandri vous propose: RARE A LA VENTE - BANDOL L ESCOURCHE - SECTEUR RECHERCHE - TERRAIN CONSTRUCTIBLE de 516 m² - 50% d EMPRISE - en TOUTE PROPRIETE - PISCINABLE - DOUBLE GARAGE possible - à 900m du PORT

FRAIS DE NOTAIRE OFFERT EN AVRIL 2026

Grosse opportunité à saisir pour ce terrain plat, exposé plein sud et piscinable de 516 m² en zone UB offrant un beau potentiel de construction. Secteur très recherché à 15 minutes à pied de la plage de Renécros ou du port.

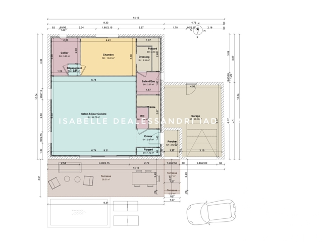
Permis de construire déposé pour une villa individuelle contemporaine de 146m² en R+1, 3 chambres, 1 suite parentale de plain pied, terrasse, double garage de 24 m² et piscine.

LIBRE CONSTRUCTEUR

Dossier complet avec prévisionnel pour un projet global disponible.

Je vous renseigne avec plaisir, soyez réactifs !

Honoraires d'agence à la charge du vendeur.
Bien non soumis au DPE. Les informations sur les risques auxquels ce bien est exposé, y compris l'obligation légale de débroussaillement, sont disponibles sur le site Géorisques :
La présente annonce immobilière a été rédigée sous la responsabilité éditoriale de Mme Isabelle Dealessandri mandataire indépendant en immobilier (sans détention de fonds), agent commercial de la SAS I@D France immatriculé au RSAC de TOULON sous le numéro 848000501, titulaire de la carte de démarchage immobilier pour le compte de la société I@D France SAS.
Surface du terrain: 516 m2

Contact

N'oubliez pas de préciser, que vous avez lu cette annonce sur Ouest-Var.net

Iad France
Isabelle Dealessandri
06 40 56 04 33
Barème d'honoraires
*: Surface indiquée par le propriétaire sous toutes réserves en l'absence d'attestation de surface.
Annonce créée le 17 janvier 2026. Cette annonce a été consultée 5 fois

Contactez l'annonceur

Merci d'indiquer au moins un numéro de téléphone*
Saisissez le code ci-dessus

*: Les champs marqués d'une asterixe sont obligatoire.