Immobilier Ouest Var
Ouest Var > Immobilier > Sanary > Appartement > SFN-1944310

430 000 € Appartement T4 Sanary

Pièces: 4
Surface: 98 m2 *
Référence: SFN-1944310
iad France - Cécile Richards vous propose: Belle surface pour cet appartement de 98m2 environ en centre ville de la très belle ville de Sanary sur Mer . Situé dans la résidence 'Europa' ,cet appartement au premier étage avec grand ascenseur vous séduira par sa proximité avec les plages et le centre ville . Tout se fait à pieds .
La résidence, très bien entretenue, offre des prestations confortables avec une rampe d'accès pour les personnes à mobilité réduite, un ascenseur 8 personnes spacieux, des couloirs larges et bien pensés .
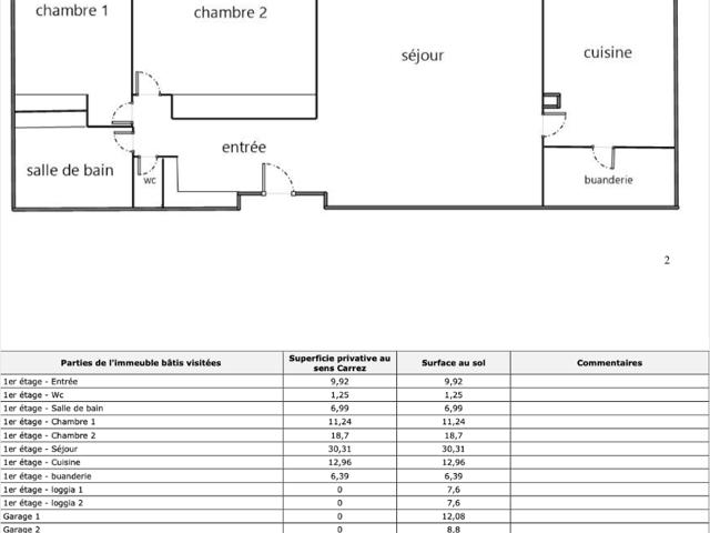
L'appartement climatisé est composé d'une vaste entrée de 10m2 avec de grands placards, un séjour de 30m2 ouvrant sur une première loggia , une cuisine spacieuse de 13m2 avec son arrière cuisine de 7m2 , deux chambres avec placards dont une de 19m2 ouvrant sur une seconde loggia , salle de bain et d'eau et WC séparés .
Vous pourrez sans difficulté et selon vos besoins ajouter une chambre.
Un simple rafraichissement sera à envisager , les simulations d'aménagement conservent l'état actuel du bien . Aucune anomalie électrique .

Pour le stationnement , deux garages peuvent être vendus en sus .

Les avantages de cet appartement sont sa localisation permettant de tout vivre à pieds et sa surface .

Ce logement pourra parfaitement convenir à une famille mais aussi à des personnes âgées ou à mobilité réduite puisque tout a été mis en place pour les accueillir .

Si toutefois un ou plusieurs cabinets médicaux souhaitaient bénéficier de cet emplacement , plusieurs cabinets médicaux sont déjà implantés au sein de cette résidence , les plaques sont autorisées et l'accès PMR est un bel atout .

Pour le visiter, merci de préférer me joindre par téléphone afin que nous puissions vérifier que ce bien correspond parfaitement à vos attentes .


La presente annonce immobiliere vise 2 lots situés dans une copropriété de 115 lots au total et ne faisant l'objet d'aucune procédure en cours citée à l'article L. 721-1 du code de la construction et de l'habitation. Montant moyen mensuel de charges déclaré par le vendeur : 113.33€ par mois (soit 1360 € annuel). Honoraires d'agence à la charge du vendeur.
Information d'affichage énergétique sur ce bien : classe ENERGIE C indice 125 et classe CLIMAT A indice 3. Les informations sur les risques auxquels ce bien est exposé, y compris l'obligation légale de débroussaillement, sont disponibles sur le site Géorisques :
La présente annonce immobilière a été rédigée sous la responsabilité éditoriale de Mme Cécile Richards mandataire indépendant en immobilier (sans détention de fonds), agent commercial de la SAS I@D France immatriculé au RSAC de Toulon sous le numéro 420119570, titulaire de la carte de démarchage immobilier pour le compte de la société I@D France SAS.
Nombre de chambres: 2
Etage: 1
Nombre d'étages: 3

Diagnostic de performance énergétique

Classe énergie (kWhEP/m².an)

125

Gaz à effet de serre (kg éqCO2/m².an)

3

Contact

N'oubliez pas de préciser, que vous avez lu cette annonce sur Ouest-Var.net

Iad France
Cécile Richards
06 68 94 35 94
*: Surface indiquée par le propriétaire sous toutes réserves en l'absence d'attestation de surface.
Annonce créée le 11 février 2026. Cette annonce a été consultée 31 fois

Contactez l'annonceur

Merci d'indiquer au moins un numéro de téléphone*
Saisissez le code ci-dessus

*: Les champs marqués d'une asterixe sont obligatoire.